Dom na sprzedaż Włocławek, Michelin

5 pokoi
300.00 m²
4 966,67 zł/m2
FMA-DS-2567
Oblicz ratę kredytu

1 490 000 zł

Dom na sprzedaż
Bez prowizji

Szczegóły oferty

Symbol oferty FMA-DS-2567
Powierzchnia 300,00 m²
Powierzchnia działki [m2] 1 556 m²
Powierzchnia balkonów/tarasów 32,14 m²
Liczba pokoi 5
Rodzaj domu wolnostojący
Technologia budowlana ytong
Standard
Liczba pięter w budynku 1
Wymiary działki 39,3 x 39,5 m
Garaż dwustanowiskowy
Okna aluminiowe
Instalacje nowe
Balkon duży
Liczba balkonów 1
Liczba tarasów 1
Zagosp. działki zagospodarowana
Ukształtowanie działki płaska
Kształt działki kwadrat
Pokrycie dachu papa termozgrzewalna
Pozwolenie na użytkowanie tak
Stan budynku wykończony
Ogrodzenie działki siatka
Rok budowy 2012
Gaz tak - miejski
Woda tak - miejska
Dojazd asfalt
Otoczenie las
Ogrzewanie C.O. GAZOWE
Tarasy taras duży
Drzwi antywłamaniowe tak
Prąd jest
Kanalizacja oczyszczalnia ekologiczna

Opis nieruchomości

Nowoczesny dom piętrowy o powierzchni 300 mkw, z dwustanowiskowym garażem 41 mkw, wkomponowanym w bryłę budynku, z częściowo zadaszonym tarasem 32 mkw, z małą piwniczką, położony w środku willowego osiedla Michelin we Włocławku, wybudowany w latach 2006 – 2012 z Ytonga (40 cm), ze stropami Teriva, z ocieplonym dachem krytym papą termozgrzewalną, o przemyślanym, funkcjonalnym rozkładzie pomieszczeń.
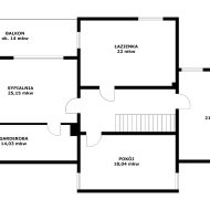
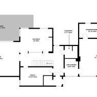
Na parterze, o wysokości pomieszczeń 2,73 m, doskonale naświetlony salon o powierzchni 38,72 mkw, z przeszkoloną w 3/4 ścianą od strony tarasu, z kominkiem, połączony z dużą – 22 mkw – kuchnią, z wyspą, na której blacie położoną mozaikę Bisazza, także z wyjściem na taras z deskami modrzewiowymi, z jadalnią, pokój 15,02 mkw, łazienka 4,71 mkw – z kabiną, muszlą, umywalką -wiatrołap, przedpokój, kotłownia, z przejściem do garażu o powierzchni 41,33 mkw, oraz, obok garażu, dwa pomieszczenia o powierzchniach 10,16 mkw i 5,34 mkw, przewidziane na ewentualny gabinet z poczekalnią dla pani lub pana domu, z wejściem z garażu i drugim, niezależnym, z zewnątrz.
Na piętrze, o wysokości 2,56 m, na które prowadzą łagodne schody granitowe z balustradami ze stali nierdzewnej, mieści się jasny przedpokój z dużym świetlikiem w dachu, pokój 18,04 mkw, pokój 25,15 mkw, z wyjściem na duży balkon, z garderobą obok 14,03 mkw, pokój 21,71 mkw oraz bogato wykończona i wyposażona łazienka z wanną, kabiną prysznicową, umywalkami schowanymi w ponad 5 metrowy granitowy blat, muszlą, bidetem. 
Cały dom starannie i nowocześnie wykończony: na ścianach i sufitach gładź, okna aluminiowe o podwyższonej izolacji termicznej Aluprof, z granitowymi parapetami, w salonie, w pokojach i przedpokoju na piętrze, na podłodze drewno egzotyczne jatoba, wrota do garażu Hormanna, otwierane pilotem, w kuchni, przedpokojach i łazienkach – gresy szkliwione, glazura, terakota, grzejniki Purmo, termostaty Danfoss.
CO gazowe z piecem dwufunkcyjnym kondensacyjnym Brotje, w kuchni, w łazience na piętrze i w garderobie ogrzewanie podłogowe, dodatkowo, na dachu, zainstalowano solary słoneczne do podgrzewania ciepłej wody, które znacznie obniżają koszty użytkowania domu. Dorowadzony gaz przewodowy, woda z sieci miejskiej, odpływ do własnej, ekologicznej oczyszczalni ścieków, kanalizacja miejska w ulicy, dodatkowo własne ujęcie wody do podlewania działki. Z zewnątrz ściany domu pokryte malowanym tynkiem mineralnym, fundamenty, taras i wejścia starannie wykończone klinkierem.
Piękna działka o powierzchni 1556 mkw, w kształcie kwadratu, o wymiarach 39,3 m x 39,5 m, z majestatycznymi sosnami, zadbanym trawnikiem, z posadzonymi kwiatami, krzewami, iglakami, teren wokół domu i podjazd do garażu wyłożony kostka brukową, ogrodzona panelami z siatki metalowej. Dojazd drogą asfaltową.


Nr katalogowy oferty: 4024N

Kalkulatory

Kalkulator kredytowy

Wysokość raty

PLN
%

Kalkulator kosztów

Podatek od czynności cywilno-prawnych

Taksa notarialna
(opłata notarialna)

Wniosek o wpis do KW

VAT od prowizji
agencji nieruchomości

VAT od taksy notarialnej
(opłaty notarialnej)

Prowizja agencji nieruchomości

Wypisy aktu notarialnego

Razem

Uwaga: mogą wystąpić dodatkowe opłaty za założenie księgi wieczystej oraz ustanowienie hipoteki.

PLN
PLN
PLN
PLN
PLN
PLN
%
PLN

Manager

Proszę wprowadzić poprawne imię i nazwisko
Proszę wprowadzić poprawny numer telefonu
Proszę wprowadzić poprawny adres e-mail
Proszę zaznaczyć wymagane zgody
Rozwiąż równanie:
20 3
Niepoprawny wynik