Dom na sprzedaż Włocławek, Zawiśle, Suszycka

5 pokoi
133.40 m²
6 146,93 zł/m2
FMA-DS-2974
Oblicz ratę kredytu

820 000 zł

Dom na sprzedaż
Bez prowizji

Szczegóły oferty

Symbol oferty FMA-DS-2974
Powierzchnia 133,40 m²
Powierzchnia użytkowa [m2] 133,40 m²
Powierzchnia działki [m2] 390 m²
Powierzchnia balkonów/tarasów 15,00 m²
Liczba pokoi 5
Liczba sypialni 4
Rodzaj domu bliźniak
Technologia budowlana gazobeton ocieplony styropianem
Standard
Opłaty wg liczników prąd
Liczba pięter w budynku 1
Garaż wiata
Okna PCV 3 szyby, ciepły montaż
Instalacje nowe
Zagosp. działki częściowo zagospodarowana
Ukształtowanie działki płaska
Kształt działki prostokąt
Pokrycie dachu dachówka cementowa
Stan budynku do wykończenia wewnątrz
Ogrodzenie działki siatka
Rok budowy 2026
Gaz w ulicy
Woda jest
Dojazd asfalt
Otoczenie zabudowa jednorodzinna
Ogrzewanie pompa ciepła
Tarasy taras
Drzwi antywłamaniowe tak
Prąd jest
Kanalizacja miejska
Pomieszczenia
Typ kuchni jasna z oknem
Rodzaj kuchni aneks kuchenny - połączony z salonem
Liczba łazienek 1
Powierzchnia łazienki [m2] 10 m2
Certyfikat energetyczny
Wskaźnik EP kwh/(m2 rok)
53.5
53.5
53.5
53.5
53.5
53.5
53.5
53.5
Wskaźnik EP: 53.5
kwh/(m2rok)
Wskaźnik EK: 17,82
kwh/(m2rok)
Wskaźnik EU: 35,63
kwh/(m2rok)

Opis nieruchomości

Wyjątkowa inwestycja na włocławskim Zawiślu !

Trzy pary nowoczesnych domów w zabudowie bliźniaczej o powierzchni 133,40 mkw każdy (z osobnymi ścianami z dylatacją), na różnej wielkości działkach – od 369 mkw do 544 mkw, które łączą współczesną architekturę z najwyższym standardem energooszczędności i jakości wybudowania !

To idealne miejsce dla rodzin szukających spokoju, nie rezygnując z miejskich udogodnień!

Kluczowe atuty inwestycji:

  • energooszczędność: każdy dom wyposażony w pompę ciepła oraz rekuperację, co gwarantuje niskie koszty utrzymania
  • solidna konstrukcja: budynki na płycie fundamentowej (izolacja 20 cm styroduru), ściany z gazobetonu z ociepleniem 20 cm styropianu grafitowego
  • standard wykończenia: elewacja z nowoczesną podbitką, szklane balustrady, podejścia i tarasy wyłożone płytkami betonowymi
  • wszystkie media: woda i kanalizacja miejska, światłowód (Satfilm), instalacja alarmowa oraz przygotowana elektryka pod automatykę bramy

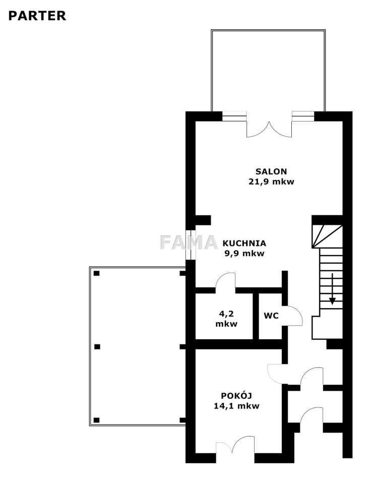
Rozkład pomieszczeń

Przemyślany układ wnętrz zapewnia przestrzeń i funkcjonalność na dwóch pełnowymiarowych kondygnacjach (wysokość 2,62 m):

Parter – strefa dzienna:

  • salon - 21,90 mkw: z bezpośrednim wyjściem na taras ok. 15 mkw
  • kuchnia - 9,90 mkw: otwarta na salon, z przygotowaną instalacją elektryczną pod wyspę kuchenną
  • pokój - 14,10 mkw: idealny na gabinet lub sypialnię gościnną z wyjściem na działkę
  • zaplecze: WC, funkcjonalna kotłownia z pralnią, wiatrołap i przedpokój

Piętro – strefa prywatna:

  • trzy przestronne sypialnie: 21,80 mkw, 15,60 mkw i 10,90 mkw
  • pokój kąpielowy - 10,00 mkw: duża łazienka z oknem
  • dodatki: komunikacja oraz dostęp do poddasza nieużytkowego (schody opuszczane)

Specyfikacja techniczna i wykonanie:

  • Dach: dachówka cementowa Braas, więźba dachowa - wiązary, ocieplenie wełną 30 cm
  • Strop: pomiędzy parterem a piętrem: Teriva Panel
  • Stolarka: okna PCW 3-szybowe Sonarol (współczynnik przenikania ciepła ok. 0,7)
  • Ogrzewanie: podłogowe w całym domu, i na parterze, i na piętrze, z pompy ciepła i rekuperacją
  • Rozprowadzona całkowicie instalacja elektryczna, w kuchni dwa przyłącza 3-fazowe do kuchni indukcyjnej (ścienne i podłogowe do wyspy)
  • Ściany wewnętrzne: tynk cementowo – wapienny
  • Bezpieczeństwo akustyczne: domy sąsiadujące posiadają osobne ściany (24 cm każda), przedzielone styropianem
  • Infrastruktura: na zewnątrz wiata gospodarcza/samochodowa o powierzchni ok. 23 mkw, działki ogrodzone

Informacje Finansowe:

  • Cena: od 820.000 zł brutto (dom z działką 544 mkw: 850.000 zł)
  • Kupujący zwolniony z opłaty skarbowej PCC (2%)
  • Prowizja 0%
  • Cena podlega negocjacji.

Lokalizacja: Domy położone na bezpiecznej wysokości ok. 68 m n.p.m. (ponad 24 metrów powyżej Wisły), przy asfaltowej ulicy o minimalnym natężeniu ruchu, z malowniczym otoczeniem zakola Wisły poniżej, 20 minut spacerem do Centrum miasta. Blisko tereny zielone - Rezerwat przyrody Kulin.

Nr katalogowy oferty: 4147N

Lokalizacja nieruchomości

Kalkulatory

Kalkulator kredytowy

Wysokość raty

PLN
%

Kalkulator kosztów

Taksa notarialna
(opłata notarialna)

Wniosek o wpis do KW

VAT od prowizji
agencji nieruchomości

VAT od taksy notarialnej
(opłaty notarialnej)

Prowizja agencji nieruchomości

Wypisy aktu notarialnego

Razem

Uwaga: mogą wystąpić dodatkowe opłaty za założenie księgi wieczystej oraz ustanowienie hipoteki.

PLN
PLN
PLN
PLN
PLN
%
PLN

Podobne oferty

Bez prowizji

Dom na sprzedaż

Włocławek, Zawiśle

4 pokoje 180 m2 3 776,63 zł/m2
Bez prowizji

Manager

Proszę wprowadzić poprawne imię i nazwisko
Proszę wprowadzić poprawny numer telefonu
Proszę wprowadzić poprawny adres e-mail
Proszę zaznaczyć wymagane zgody
Rozwiąż równanie:
25 6
Niepoprawny wynik