Mieszkanie na sprzedaż Włocławek, Zazamcze

2 pokoje
37.60 m²
5 186,17 zł/m2
3 piętro
FMA-MS-2980
Oblicz ratę kredytu

195 000 zł

Mieszkanie na sprzedaż
Oferta na wyłączność

Szczegóły oferty

Symbol oferty FMA-MS-2980
Powierzchnia 37,60 m²
Powierzchnia użytkowa [m2] 37,60 m²
Liczba pokoi 2
Rodzaj budynku blok
Technologia budowlana płyta
Opłaty w czynszu administracja
Opłaty wg liczników gaz
Piętro 3
Liczba pięter w budynku 11
Stan lokalu do odnowienia
Mies. czynsz admin. 287 PLN
Czynsz zimowy 287 PLN
Okna PCV
Balkon jest
Liczba balkonów 1
Rok budowy 1971
Widok panorama miasta
Gaz tak - miejski
Woda ciepła - miejska
Dojazd asfalt
Otoczenie rzeka
Ogrzewanie miejskie
Umeblowanie częściowo umeblowane
Winda tak
Liczba wind 2
Usytuowanie jednostronne
Klucze tak
piwnica tak

Opis nieruchomości

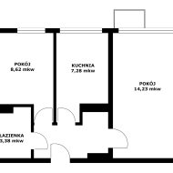
Mieszkanie 2-pokojowe o powierzchni 37,60 mkw + użytkowana piwnica, położone na 3. piętrze bloku 11-piętrowego, na Os „Zazamcze”, przy ul. Toruńskiej we Włocławku, z balkonem, z jasną kuchnią, bez pokoi przechodnich, duży pokój o powierzchni 14,23 mkw, sypialnia – 8,62 mkw, kuchnia – 7,28 mkw, łazienka z WC – 3,38 mkw, przedpokój – z wnęką na szafę – 4,09 mkw.

Okna PCW (prócz sypialni), w pokojach na podłodze parkiet, w pozostałych pomieszczeniach winigram, na ścianach tapety malowane, częściowo tynk, w kuchni i w łazience glazura.

Czysta klatka schodowa, funkcjonują dwie nowoczesne windy, blok ocieplony, z kolorową elewacją.

Dobra lokalizacja, w pobliżu różne sklepy, szkoły, przedszkole, przy bloku ogólnodostępne miejsca parkingowe, wokół zagospodarowane tereny zielone.          Bardzo dobre połączenie z centrum miasta i innym osiedlami - w pobliżu przystanek kilku linii autobusowych Miejskiego Przedsiębiorstwa Komunikacji.

Niskie koszty użytkowania – miesięczne opłaty ponoszone do Spółdzielni Mieszkaniowej „Zazamcze” – 287 zł + opłaty za energie elektryczną, gaz, wodę, korzystanie z wind (9 zł od osoby) i za wywóz śmieci (34 zł od osoby).

Mieszkanie wolne, do przekazania nabywcy natychmiast po rozliczeniu transakcji.

Nr katalogowy oferty: 6439M

Lokalizacja nieruchomości

Kalkulatory

Kalkulator kredytowy

Wysokość raty

PLN
%

Kalkulator kosztów

Podatek od czynności cywilno-prawnych

Taksa notarialna
(opłata notarialna)

Wniosek o wpis do KW

VAT od prowizji
agencji nieruchomości

VAT od taksy notarialnej
(opłaty notarialnej)

Prowizja agencji nieruchomości

Wypisy aktu notarialnego

Razem

Uwaga: mogą wystąpić dodatkowe opłaty za założenie księgi wieczystej oraz ustanowienie hipoteki.

PLN
PLN
PLN
PLN
PLN
PLN
%
PLN

Podobne oferty

Mieszkanie na sprzedaż

Włocławek, Zazamcze

3 pokoje 48 m2 4 875,52 zł/m2
Oferta na wyłączność

Mieszkanie na sprzedaż

Włocławek, Zazamcze

1 pokoj 28 m2 5 950,70 zł/m2
Oferta na wyłączność
Oferta na wyłączność

Mieszkanie na sprzedaż

Włocławek, Zazamcze

2 pokoje 41 m2 5 097,56 zł/m2
Oferta na wyłączność
Oferta na wyłączność

Mieszkanie na sprzedaż

Włocławek, Zazamcze

2 pokoje 32 m2 5 820,43 zł/m2
Oferta na wyłączność

Manager

Proszę wprowadzić poprawne imię i nazwisko
Proszę wprowadzić poprawny numer telefonu
Proszę wprowadzić poprawny adres e-mail
Proszę zaznaczyć wymagane zgody
Rozwiąż równanie:
28 2
Niepoprawny wynik